
“霸道”浆液过滤筛是我公司在原浆液专用筛的基础上,通过技术改进和大量试验,独立开发研制的一款筛分设备。该产品为单层网结构,上框为加高敞开式设计。底框和振动体连为一体,减轻了电机激振力的消耗,具有产量大、耗电低的优势。
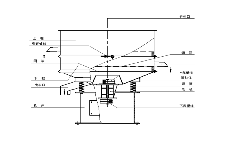
结构形式

产品特点
1.电机采用铝制外壳,散热快,免维护,使用寿命长。
2.敞口式外观设计,易于观察筛网上面物料的运行轨迹,筛网清洗方便。
3.采用国际品牌振动电机,具有噪声低,体积小,重量轻,耗电量小,过载能力强,外观精细,属新一代环保产品。
4.无机械动作,不需保养,可单层或双层使用。
5.网孔不堵塞,无溅料现象,杂质粗料自动排出,可连续作业。
6.与原料接触部位皆采用SUS304材质制作,外形美观
产品用途
固液分离:本设备可单层、双层使用,能十分有效的处理固、液混合物料,快速实现固液分离,并筛选过滤出不同目数的物料。
除杂:本设备可除去大量液体物料中大小不同的小部分杂料,进行快速分离。
凭借新型立式振动电机轴上下两端的偏心重锤,运转起来后产生偏心力,这种偏心力同时分解出三种力(即:水平力、垂直力和倾斜力),此三种力又同时被传到筛面上,使物料在筛面上做出规律性运动,即是筛分的过程。
上下重锤夹角的调整,可改变物料在筛面上的运行轨迹,从而调整生产过程中的筛分效果。

上下重锤相位角调整方法
根据各种原料的不同性质,可以调整上下重锤相位角,有效改变原料的运动轨迹,延长或缩短原料在筛网上的时间,以达到**佳筛分效果。
调整重锤部分,只需调整下部重锤,上部重锤不需要变动。例如当上下重锤之夹角由0°调整到15°时,上部重锤不需要变动,须沿着电机转动方向,调整下部重锤比上部重锤**15°,上紧螺丝即可。
换网方法
(1)把束环螺丝松掉,卸下上框、网架。
(2)网架放在一个平台上,放平稳,去掉网架胶条,松开上下两个网架束紧器,取下已破损的筛网。
(3)裁下所需目数的筛网,筛网尺寸应比网架上部外径尺寸大10厘米(大于网架高度即可)
(4)把裁好的筛网平铺在网架上,各边到网架距离均匀。
(5)先装下部网架束紧器,略微上紧,拉一下筛网边沿,使筛网均匀平铺在网架上,并保证各边完全被束紧器夹住,然后完全上紧。用手指按一下,筛网应有一定的张紧力,若过松应重新装一次。
(6)安装上部网架束紧器,束紧器螺丝应与**个束紧器螺丝成十字型布置,并完全上紧。
(7)沿网架边沿裁去多余筛网,在网架上套好密封胶条。
(8)把换好筛网的网架放到筛机相应位置,各边距离应均匀,扣上上框,上紧束环即可。
注:安装网架束紧器应先安装下面的,再安装上面的,顺序不能颠倒,也不能同时安装上下束紧器。另外注意安全,别让筛网边沿钢丝划破手指。
机型 | 功率(kw) | 筛面直径(mm) | 有效面积(mm) | 层数 |
BD - 800 | 0.37 | 760 | 0.4534 | 1 |
BD - 1000 | 0.4 | 1000 | 0.785 | 1 |
BD - 1200 | 0.45 | 1130 | 1.0023 | 1 |

典型案例
箭牌卫浴、惠达卫浴、恒洁卫浴乐华洁具、广东新明珠陶瓷集团、蒙娜丽莎陶瓷、新中源陶瓷、马可波罗、正大陶瓷有限公司、鹰牌陶瓷、辽宁金地阳(新中源)、厦门欣意盛
主要应用于陶瓷行业(泥浆、釉料)、油漆行业、涂料行业,以及其它行业的固液筛分与过滤。

根据客户上下游产品及现场空间,修改设备尺寸,定制设备结构,满足客户需求。
公司从事筛分及输送设备20年,20年以上工作经验的工程师2名,给客户提供专业的建议和设备解决方案。
设备的质量,在原材料采购阶段已经决定,所以我们有严格的采购体系和质检体系,关注源头细节。
公司建立了完善客户回访体系和售后服务体系,售后团队响应及时,省内24小时奔赴现场,省外72小时奔赴现场。
源头设备生产厂家,无中间环节,价格公正合理,让客户获得实实在在的利益,获得更多的增值服务。
合作只是起点,服务没有终点,一次合作,终身朋友。凡购买恒宇公司的设备,提供终身的技术支持和设备维修服务。
使用过程中,如有任何疑问可随时致电或在线咨询。0373-5712316
